En branches organisées : un réseau de pépinières de quartier

Le projet “Peps” vise la création et la gestion coopérative d’espaces de production de végétaux nourriciers et médicinaux propices aux écosystèmes de jardins-forêts. Il s’agit d’amplifier et promouvoir l’agroforesterie urbaine, comme système productif adapté à la ville et régénératif des sols et de la biodiversité.
Nous partons du constat qu’il manque des lieux de production d’arbres proches des villes. Les connaissances autour des plantes (identification, usages), les savoir-faire autour de la multiplication végétale se sont perdus. Les gestes doivent être ré-appris et ré-introduits auprès des jardiniers bien sûr, mais aussi des collectivités, des porteurs de projets, des associations.
Nous avons tout à gagner à (ré)inviter les arbres dans nos vi(lle)s, à réapprendre à multiplier cette ressource, à imaginer des lieux où cette ressource deviendrait abondante et accessible à tou.te.s!

Ce projet a donc plusieurs objectifs :

  • contribuer à la végétalisation de la ville, en proposant une ressource de plantes vivaces (arbres, arbustes, vivaces) adaptée aux petits espaces, et multifonctionnelle. Promouvoir une palette végétale propice à la mise en place de jardins-forêts comestibles.
  • Penser les processus de projet et de gestion de manière collaborative et partagée, pour amplifier la capacitation citoyenne et l’acquisition de nouveaux savoir-faire.
    Partager, transmettre, diffuser d’autres manières de jardiner, de produire ses plants, de se fournir en ressources. Il est urgent de se réapproprier le vivant et sa connaissance.
  • Développer des outils pour ouvrir des champs de discussions, des prétextes pour démocratiser l’agroécologie et les modes de production vertueux pour que les jardins privatifs puissent être les lieux d’une biodiversité retrouvée.
  • Expérimenter d’autres manières de gérer les espaces publics. Cette réflexion est amorcée au sein du projet de l’Epine Comestible (lien à faire sur l’article du site dédié), à Hellemmes, où Les Saprophytes et le CIBB accompagnent la mise en place d’îlots nourriciers sur l’espace public. Réinventer la dimension d’utilité, de productions, et de stockage du carbone en ville.
    partenaires

Ce projet est né de la fusion de nos expériences et de l’intérêt partagé que nous avons pour les questions des “Communs”, avec notamment ANIS CATALYST, acteur de l’écosystème, qui se penche sur le sujet depuis bientôt 10 ans, et partenaire clé du projet.

Le projet est soutenu par la Fondation de France, la Région Hauts-de-France et la ville d’Hellemmes.

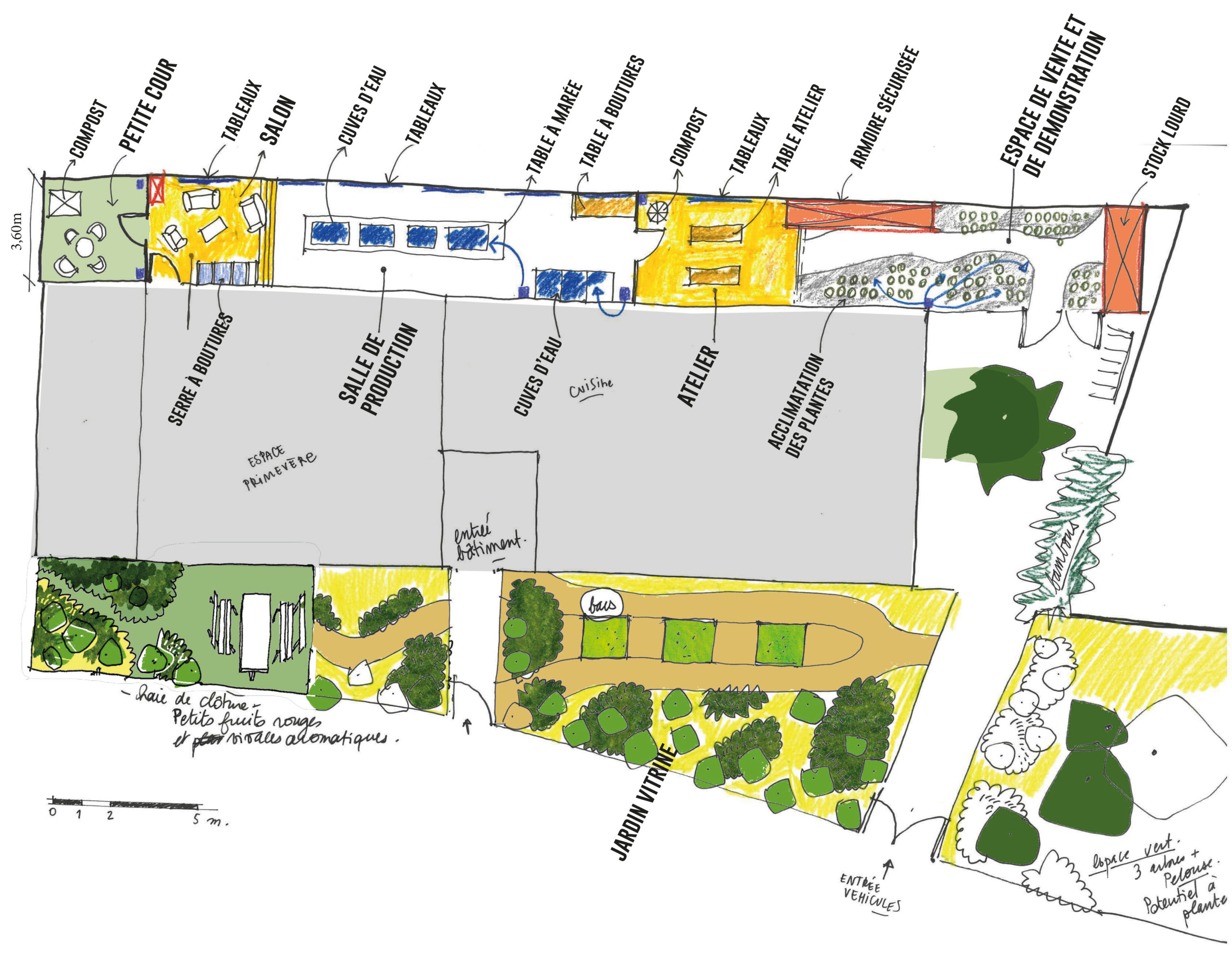
La peps des primevères

La ressource principale concernée par la peps est une ressource matérielle : le végétal nourricier. Elle comprend les arbres et arbustes fruitiers adaptés à l’urbain, et les plantes vivaces couvre-sol comestibles.
La ressource immatérielle liée aux connaissances de la multiplication végétale (greffe, bouture, semences) est, selon nous, une part non négligeable du Commun à développer, pour penser l’inclusivité, l’autonomie et la résistance face à des circuits de consommation peu vertueux.

Notre souhait est que la ressource végétale puisse se multiplier et se partager aisément afin d’encourager de plus en plus d’initiatives de plantations.

Nous souhaitons amplifier la multiplication des jardins nourriciers, inspirés de l’agroforesterie, sur des terrains publics, mais aussi dans les jardins privés.

Le lieu

La peps des Primevères se déploie à Hellemmes, à l’espace Primevères, au 209 rue Chanzy. Le lieu a été mis à disposition de l’association par le Ville d’Hellemmes.

L’équipe des soucieu.se.s y assure une permanence tous les vendredi après-midi, de 14h30 à 17h30.

Concrètement, vous pouvez y faire quoi ?

Les contributions possibles :

  • Participer au chantier participatif pour aménager et prendre soin de l’espace Primevères
  • Se former à la multiplication végétale
  • Entretenir la pépinière, s’occuper des jeunes branches!
  • Échanger, partager les ressources naturelles de son jardin, repérer les ressources dans le quartier à bouturer, nourrir une cartographie interactive
  • Participer ou aider à l’organisation d’événements autour de la peps : des fêtes, des rencontres, des forums d’associations, etc.
  • Prendre soin de la communauté
  • Être relais sur la communication, sur les réseaux, dans les lieux du quartier
  • Faire des images, vidéos ou photos, participer au reportage/ suivi des actions en vue de la mise en récit...
  • Aider à repérer de nouveaux lieux potentiels pour implanter d’autres espaces
  • Aider à répondre à des appels à projets, à la recherche de subvention

Et plus largement, vous pourrez y trouver quoi ?

De la collaboration, des liens dans le quartier, rencontrer son voisin, révéler la ressource végétale du quartier,
nourrir son jardin, trouver des plantes produites localement, prendre soin, apprendre à multiplier, à bouturer,
s’engager dans un projet collectif et coopératif!

Sans oublier, qu’un budget contributif est mis sur la table! Expérimentons ensemble une troisième voix entre le bénévolat et le salariat.

Le projet de la peps est financé par la Fondation de France, la région Hauts-de-France, en partenariat avec la Ville d’Hellemmes, et l’association Anis-Catalyst